При работе с гипсокартоном многие сталкиваются с необходимостью делать под него обрешетку. По своей сути обрешетка для гипсокартона представляет собой монтаж каркаса для установки листов. С ее помощью можно выровнять стену или потолок, что позволит скрыть все неровности или дефекты бетонных перекрытий.
Для людей, которые имеют поверхностное понятие касательно того, как сделать обрешетку под гипсокартон, наша статья поможет разобраться во всех тонкостях данной процедуры. Прочитав ее, вы легко сделаете монтаж каркаса своими руками.
Что же это такое?
Для многих людей ответ на вопрос «как сделать обрешетку под гипсокартон» начинается с понимания самого слова «обрешетка». Под ней понимают монтаж решетчатой конструкции для стен или потолка.
Обрешетка для гипсокартона необходима в том случае, если присутствует кривизна стен. Очень часто кривизна стен довольно заметна, особенно в многоквартирных домах старых застроек. С помощью такой нехитрой процедуры, как обрешетка под гипсокартон, вы своими руками добьетесь идеально ровных стен в своем доме.
Варианты сборки


Вопрос «как правильно сделать обрешетку?» имеет достаточно простой ответ, который зависит от того, какой тип каркаса будет монтироваться.
Обрешетка для гипсокартона создается двумя способами:
- с применением деревянных балок и реек. Из дерева обрешетка будет немного проще;
- с использованием металлических профилей. Их применение позволит создать более прочный и долговечный каркас.
Тип каркаса зависит в большей степени от ваших финансовых возможностей.


Однако помните, что дерево менее прочный материал, да к тому же и хорошо горит. Поэтому в целях пожарной безопасности все же стоит отдавать свое предпочтение в пользу металлического профиля. Такое устройство будет более долговечным, хоть на его сборку и уйдет немного больше времени.
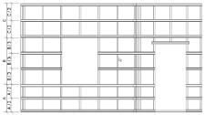
Чертеж обязателен
Обрешетка для гипсокартона всегда нуждается в создании чертежа. С его помощью вы сможете просчитать


все особенности вашего помещения и создать такой каркас, который вам необходим.
Помимо этого пользуясь таким чертежом, вы без проблем сделаете разметку для стен, проведете монтаж, а также просчитаете количество необходимого профиля.
Готовимся как надо
Обрешетка для гипсокартона, которая будет проводиться своими руками, предполагает проведение предварительных подготовительных работ. Здесь вам необходимо будет проделать следующие действия:


- расчистка пространства возле стен;
- очистка рабочей поверхности от старой отделки;
- замазывание шпаклевкой всех трещин и грунтовка стен;
- нанесение разметки под профиля.
Также на данном этапе необходимо подготовить к работе следующие инструменты:
- ножницы по металлу;
- дрель;
- шуруповерт;
- перфоратор;
- строительный или водный уровень;
- карандаш и рулетку.
И конечно не забудьте прикупить в строительном магазине следующие материалы:
- металлические профиля;
- кронштейны, саморезы и дюбеля;
- крепежные подвесы.
Без всего этого монтаж будет невозможен.
Дело мастера боится
Монтаж что деревянного, что металлического каркаса своими руками ведется по схожей схеме. На сегодняшний день более предпочтительными остаются металлические профиля.
Обратите внимание! При использовании дерева для обрешетки его нужно заблаговременно обработать специальными растворами, которые защитят брусья и рейки от неблагоприятного воздействия температуры и воздуха, а также появления в них насекомых.
Процесс сборки обрешетки из металлического профиля выглядит следующим образом:
- сборка опорных профилей. Нужно начинать с пола, чтобы по ней ориентировались все остальные профиля;
- далее проводим их монтаж строго по линии нанесенной ранее разметки, после чего установленные профиля необходимо проверить по строительному уровню. От этого будет зависеть, насколько ровной получится обрешетка стен;
- крепим все с помощью дюбелей. В данной ситуации крепить профиля необходимо каждые 25 см;
- далее устанавливаем профили вдоль всей стены. Они также должны быть выверены с помощью уровня и находится в одной плоскости;


- после этого приступаем к монтажу поперечных перемычек, сделанных из стоечных профилей. Шаг их установки определяется степенью загруженности стеночной конструкции. Чем больший вес она должна будет выдерживать, тем чаще нужно устанавливать поперечные перемычки.
Обратите внимание! Чтобы конструкция получилась более прочной и жесткой, необходимо использовать крепежные подвесы.
После того как каркас будет готов, можно начинать обшивку его гипсокартонными листами.
Особенности монтажа
Чтобы сделать обрешетку стен металлическими профилями правильно, необходимо придерживаться некоторых советов.
Представляем вашему вниманию небольшую подборку наиболее важных рекомендаций, выполнение которых поможет вам избежать самых распространенных ошибок новичков:


- избегайте соприкосновения саморезов и шурупов с элементами проводки, которые обычно проведены вдоль стен;
- при влажном климате для создания каркаса необходимо использовать только металлические элементы, а также влагостойкий тип листов гипсокартона. Если же вы намерены использовать дерево для обрешетки, то обязательно обработайте его несколькими слоями специального защитного раствора, который будет защищать от негативного воздействия влаги и отгонять древесных насекомых;
- начинайте монтаж профилей с пола и по всему периметру стен;
- при проживании в климате, для которого характерны перепады температуры, снежные зимы и жаркие лета в каркас желательно устанавливать утеплительные материалы;
- применение необработанных деревянных реек крайне нежелательно. Их необходимо предварительно отшлифовать и сделать гладкой поверхность. В том числе и поэтому многие предпочитают использовать именно металлические элементы для создания стеновой обрешетки.
Руководствуясь этими рекомендациями, вы без малейших проблем сделаете обрешетку любого помещения и получите безупречно ровные стены. Кроме того вы сможете создавать сложные стеновые устройства, которые будут включать в себя ниши или полки из гипсокартона.
При создании каркаса помните, что именно от него зависит вся прочность и красота окончательного ремонта.