Сегодня гипсокартон является наиболее часто используемым во внутренней отделке материалом. С его помощью можно идеально выровнять потолок и пол, а также скрыть некоторые элементы (коммуникации, трубы и т.д.). Достаточно часто при создании потолочных конструкций из этого материала стали формировать и ниши для штор.
Делается такая конструкция относительно просто, и вы с легкостью своими руками осилите все ее элементы. С помощью такой ниши можно скрыть от постороннего взгляда всю систему крепления штор и придать своему жилицу опрятный и нестандартный вид.
Типы конструкций
На сегодняшний день ниша для штор из гипсокартона выполняется в двух основных вариациях:
- глубокая. Подобного рода короб формируется тогда, когда для навешивания штор будет использоваться громоздкая и внушительная система. Такая конструкция подойдет для двух- или трехрядных карнизов и позволит спрятать в себе как шторы, так и тюль. В результате человек будет наблюдать только элегантно ниспадающую ткань, а все крепления будут от него скрыты;
- неглубокая. Предполагает небольшую глубину, которая позволяет разметить незначительные и самые простые элементы крепления. Для такого короба отлично подойдут струнные или однорядные карнизы.
Кроме этого, ниша в потолке может располагаться следующим образом:
- устройство исключительно под шторы. Встречается чаще всего. Основным ее предназначением является сокрытие от посторонних глаз крепежной системы. Позволяет создать законченную конструкцию вместе с подвесным потолком;
- устройство для карниза. Дает возможность установить легкие и передвижные перегородки. Очень часто применяется при создании в помещении японского или азиатского стиля. Подобные раздвижные перегородки являются элементами традиций и многовековой культуры Дальнего Востока.
Существуют также следующие варианты оформления потолочного короба для штор:
- с подсветкой. Такое оформление подходит только для глубоких ниш;
- без подсветки. Такое простое оформление лучше всего подойдет для неглубоких ниш.
Глубокий короб


Какой бы вариант конструкции вы себе не выбрали, следуя инструкции монтажа, соорудить ее своими руками будет не так уж сложно.
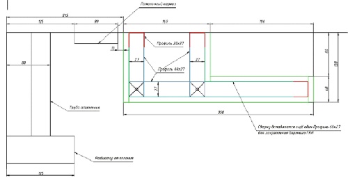
Разработка чертежа
Монтировать такую конструкцию всегда следует одновременно с подвесным потолком. Поэтому чертеж короба будет разрабатываться следующим образом:
- наносим периметр потолка на бумагу;
- отступаем от оконного проема 10-15 см. Это будет ширина короба для штор;
Обратите внимание! Ширина короба может варьироваться в зависимости от вида карниза. При наличии сложной системы креплений ширину ниши можно увеличить. Если будет использоваться карниз-струна, тогда данный параметр можно несколько уменьшить.
- наносим элементы подвесного потолка: его уровни, места крепления подсветки, фигуры и т.д.


Не забудьте включить в схему размеры самой ниши и отделку ее гипсокартонными листами.
Нарисовав чертеж, вы можете более точно определить то количество материалов, которое вам понадобится для работы. Кроме того, схема поможет заранее выявить все особенности и нюансы крепления.
Рабочие инструменты
Создание короба для штор в потолке возможно при наличии следующего перечня инструментов:


- дрель с набором сверл;
- перфоратор;
- строительный уровень;
- рулетка;
- карандаш;
- мастерки;
- наждачная бумага.
Не стоит забывать, что для монтажных работ вам понадобится следующий перечень материалов:
- листы гипсокартона. Помните, что при установке конструкции на кухне следует приобретать влагостойкий гипсокартон. Для других помещений вполне подойдут и стандартные листы;
- направляющие и стоечные профиля;
- дюбеля, саморезы, шурупы;
- шпаклевка;
- грунтовка глубокого проникновения;
- средство против плесени.
С таким набором материалов и инструментов вам будет по плечу любая конструкция для сокрытия штор.
Подготовка к работе
Предварительная подготовка к монтажу выглядит следующим образом:
- снимаем старый карниз;
- очищаем потолок от предыдущей отделки;
- удаляем все выступающие элементы: железные штыри, гвозди и т.д.;
- грунтуем поверхность потолка;
- обрабатываем прилегающее к окну пространство средством против плесени.
Теперь осталось только нанести разметку на потолок и можно начинать монтировать металлический каркас.
Основной этап работ
К основному этапу работ относится установка металлического каркаса и обшивка конструкции гипсокартонными листами.
Теперь рассмотрим все более детально.
Установка металлического каркаса для создания ниши под шторы предполагает проведение следующих операций:
- по линиям устанавливаем профиль «UD» и закрепляем его на дюбеля с шурупами;
- при формировании неглубокой ниши устанавливаем профиль «UD» параллельно первому на расстоянии, указанном в чертеже;
- в этот профиль монтируем профили «СD». При формировании неглубокого короба именно второй профиль «UD» играет роль опоры для двух краевых стоечных профилей;
Обратите внимание! При создании неглубокой ниши первый профиль, примыкающий к оконному приему, можно демонтировать после установки второго профиля.
- далее осуществляем монтаж остальной потолочной конструкции.


При необходимости создания глубокого короба нужно проделать следующее:
- устанавливаем два профиля «СD». Один монтируем около оконного проема, а другой параллельно ему. Ширина ниши должна быть не менее 10-15 см, чтобы точно уместить систему креплений;
- далее на уже установленные профили монтируем следующие профиля;
- формирование второго «этажа» осуществляется одновременно с общей потолочной конструкцией. Здесь центральная часть может монтироваться с дополнительным уровнем;
Обратите внимание! Во второй уровень можно встроить небольшие точечные светильники или светодиодную ленту. Это поможет акцентировать внимание на шторах, особенно в ночное время.
Когда каркас закреплен, нужно обшить его гипсокартонными листами. Это делается следующим образом:
- делаем разметку на листах;
- нарезаем гипсокартон на куски необходимой длины;
Обратите внимание! Можно использовать куски материала, которые остались после обшивки основной потолочной конструкции.
- устанавливаем куски материала к конструкции таким образом, чтобы они не выступали за элементы каркаса. Если гипсокартон слегка вылез, его следует аккуратно подрезать;
- гипсокартон крепим на саморезы.
Теперь все готово к финальной отделке.
Заключительный этап
На данном этапе вам необходимо будет проделать следующие операции:
- заделать стыки серпянкой, а затем зашпаклевать их. Шпаклевать также следует и места вкручивания саморезов;
- шпаклюем всю конструкцию и грунтуем ее;
- зашкуриваем все неровности и наносим финальный слой шпаклевки.
Осталось только задекорировать нишу под интерьер комнаты. Для этого короб можно покрасить, обклеить обоями или нанести на него декоративную лепнину.
Полезные советы
Эти рекомендации помогут вам достичь максимально качественного результата:
- строго придерживайтесь последовательности этапов работы;
- используйте только качественные материалы проверенных фирм;
- продумайте все нюансы конструкции на этапе создания чертежа;
- делайте короб универсального размера, чтобы не рушить его устройство со сменой штор и карниза.
Следование этим рекомендациям и инструкциям поможет вам без всяких осложнений сделать своими руками нишу для штор.