Довольно частое бывает такое, что в квартире не хватает уюта и тепла. Даже, после смены цвета стен, освещения и предметов мебели, это не очень приятное ощущение отсутствия чего-то такого, что могло бы оживить интерьер, остается. Действительно «живым» объектом в комнате может стать камин, но с его установкой, именно в квартире, связанно много трудностей. Главной из них обязательно станет установка дымохода, ведь это не так просто, как кажется на первый взгляд.
Ну а другие проблемы, это: необходимость в постоянном наличии топлива и внимания за пламенем, риск возгорания или отравление угарными газами, если был неправильно установлен дымоход. В общем, настоящий камин — удел владельцев домов, но точно не городских квартир. Что же делать тем, кто живет в квартире, но тоже хочет себе это завораживающие зрелище в виде камина, вы узнаете в этой статье.
Огонь, который не обжигает
Отличной альтернативой обычному камину, который использует как топливо угли или дрова, может послужить его электрический аналог. Самый примитивный вариант такого устройства видели многие: вентилятор с подсветкой и натянутая на него оранжевая ткань, которая изображает языки пламени. В более продвинутых версия используется пар с подсветкой, что, к слову, получается очень реалистично. Но кроме эстетической функции, камин выполняет ещё и весьма нужную — обогревает помещение. Его электрический брат тоже на такое способен. В них устанавливают нагревательные элементы, которые намного безопаснее открытого пламени.


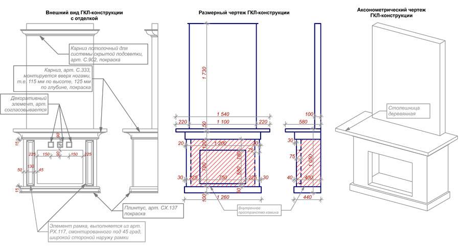
Для создания более натурального и гармоничного образа электронного камина, нужно соорудить для него каркас и задекорировать его. Настоящие камины имеют достаточно большие размеры, какие вам и потребуется воссоздать для электронного. Как основной элемент обшивки конструкции будет использоваться гипсокартон.
Инструмент
Это не особо сложная задача, с ней, под силу справится практически любому, поэтому инструментов будет мало. Итак, вам понадобятся:
- Гипсокартон;
- Лазерный уровень;
- Большой нож и болгарка;
- Саморезы и дюбели;
- Материалы для дальнейшей отделки;
- Металлические профили;
- Шуруповерт.
Если вам нужно сделать только короб, куда вы будете ставить свечи или что-то подобное, то можно обойтись только гипсокартоном, но если нужен большой и красивый камин, то обязательно понадобятся краски и другие декоративные элементы. Также, нужно будет дополнительно укреплять каркас, но об этом ниже.
Видео
Проектирование
При создании маленького камина можно просто схематически набросать его изображение, но при работе с серьезным изделием, вам потребуется сделать точный рисунок того, каким оно должно получиться, подробный чертеж, в идеале, макет.
И как при любом проектировании, здесь вряд ли обойтись без компьютерных программ, но если вы уверены в своих силах, то можете положить груз чертежа на бумагу. Все формы, которые вы задумали и набросали на бумаге, нужно перенести на стену.


Теперь, по этой «настенной живописи» можно сделать макет, именно можно, а не нужно, так как это не сильно скажется на результате, но от существенного количества ошибок вы можете избавиться. Макет изготавливается из пенопласта. На нем вы может потренироваться, возможно, вам не понравятся формы или нужно будет изменить размер и т. п.
Важно учесть расположение проводов на той стене, у которой вы будете располагать камин, ведь если вы задаете их при проделывании отверстий, то грозит это очень серьезными последствиями. Также, горячий воздух, который будет производить электронный камин, нужно куда-то выводить, что тоже необходимо продумать заранее. Укажите расположение розеток на чертеже, так, вам будет намного проще спланировать формы будущего изделия и избежать неприятных ситуаций.
Каркас
Здесь описывается, как изготовить угловой камин из гипсокартона, так как он является одновременно и самым вместительным, и самым аккуратным видом этого изделия. Обычно, камин располагают в середине стены, и он становится основной частью комнату, куда обращено все внимание, но так он занимает слишком много места и размещать его нужно только в больших помещениях. В маленьком же, отлично себя покажет угловой.
На отметки, которые вы сделали на стене, нужно поместить направляющий профиль и надежно закрепить дюбелями. Потом, с помощью стоечных реек, необходимо создать контуры пьедестала камина. Стоит отметить, что начать возводить камин можно на ступени из кирпичей, мрамора или камня. Немного реже, но используют дерево. К полу или плите прикрепляется UD-профиль, в котором нужно надежно зафиксировать стоечные рейки.


Профиль, который был закреплен на стене, нужно соединить со стоечными рейками с помощью маленьких отрезков металлического профиля. Если запланирован большой и тяжелый электрический камин, то необходимо укрепить конструкцию. Делается это с помощью все тех же профилей. Когда готово основание, то можно приступать к прокладке проводки и необходимых для нее отверстий. Это можно сделать ещё до сооружения каркаса, но так вам будет проще понять расположение камина и проложить провода.
Нужно определиться в том, где будет находиться электрический камин: стоять на полу или, к примеру, в середине каркаса. Если он находится на полу, то незачем создавать дополнительные укрепления для его удержания, и достаточно просто обшить каркас гипсокартоном. Но если он будет располагаться выше, то необходимо сделать для него подставку из профилей.
Обработка и отделка гипсокартоном
Главной деталью фальшь-панели из гипсокартона будет та, в которой необходимо сделать отверстие-топку. Вырезать его можно лобзиком, края панели нужно обработать, чтобы убрать все шероховатости. Следующее отверстие, которое необходимо сделать, нужно для отвода тепла, которое производит электрический камин.


На данном этапе должна быть проведена вся проводка, в том числе и для различных светильников, которые будут располагаться рядом или в портале. Внутрь каркаса помещается камин, так как сейчас это сделать намного удобнее. Каркас обшивается гипсокартоном с помощью шуруповерта, шаг должен быть в 10–13 см, шляпки нужно утапливать в материал. Если дальше не планируется никаких манипуляций, и вы хотите оставить все как есть, то на этом основная часть работы заканчивается. Но можно сделать камин более декорированным.
Сейчас, у вас есть простой и плоский портал, чтобы сделать его более симпатичным, нужно добавить дополнительные уровни. Сделать их можно с помощью UD и CD-профиля. Этими уровнями может быть: широкий пьедестал, накрытый плитой, несколько ступенек, для создания легкой утонченности и т. п. Также, можно создать декоративный дымоход либо поставить заместо него полочку.
Когда вы закончили создавать дополнительные конструкции, то можно приступать к оштукатуриванию гипсокартона, после чего наступает следующий этап.
Финальные аккорды


На данном этапе работа над камином, который вы сделали свои руками, почти закончена, остается только покрасить камин, прикрепить лепнины и установить полки и различные панели, которые позволят эффективно распорядиться свободным местом. Вот он и готов, включайте его в розетку, берите чашку, наполненную вкусным какао, и садитесь в уютное кресло. Стоит отметить, что рядом с этим элементом интерьера лучше ничего не ставить, ни **шкафов**, ни столов, а просто оставить место, которое камин заполнит своей атмосферой.